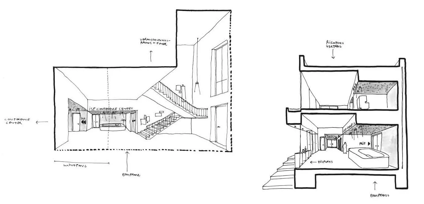
ISP CONFERENCE CENTRE, SALZBERGEN

VERWALTUNGSGEBÄUDE ABWASSERBETRIEB TEO, TELGTE

FEUERWEHRZENTRUM, KÖLN-KALK

GEMEINSAM WOHNEN, LÜDINGHAUSEN

FEUERWACHE, NORDHORN

INTEGRATIVES ZENTRUM, DÜLMEN

FEUERWEHRGERÄTEHAUS, NEUENKIRCHEN

BEVÖLKERUNGSSCHUTZZENTRUM, KREIS GÜTERSLOH

PRIVATHAUS, TELGTE

Blick von einer Balkonterrasse mit Esstisch auf einen Gemeinschaftsgarten mit Kindern, Bäumen und Bänken in einer modernen Wohnanlage. Architekrurvisualisierung, SBDA, Wettbewerb.