WETTBEWERB,

PARKHAUS

UNIKLINIKUM,

MÜNSTER

Moderne mehrstöckige Gebäudekomplex mit begrünten Balkonen, umgeben von Bäumen, mit Fußweg und Autos im Vordergrund, ein Hubschrauber fliegt am Himmel. SBDA, Wettbewerb, Parkhaus, Uniklinikum, UKM, Münster, Städtebau, Aufstockung, Parkierungskonzept,
Strichzeichnung eines modernen Gebäudes mit mehreren Etagen, umgeben von Bäumen. SBDA, Wettbewerb, Parkhaus, Uniklinikum, UKM, Münster, Städtebau, Aufstockung, Parkierungskonzept, PKW Stellplatz, Rampe

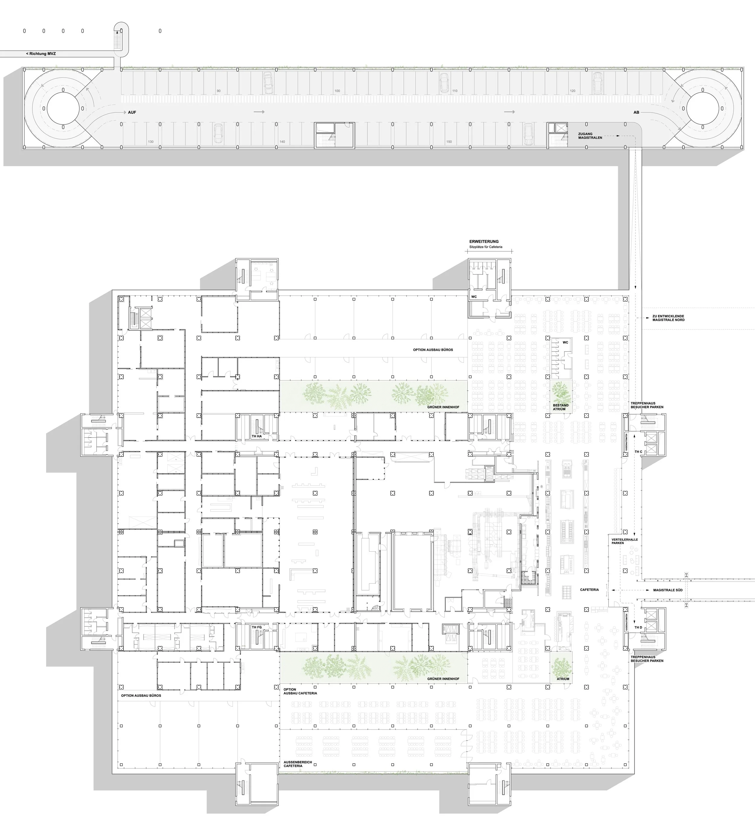
Das vorgeschlagene Konzept besteht aus zwei miteinander verbundenen, jedoch eigenständig zu errichtenden, Parkhäusern. Einem Parkriegel entlang der Albert-Schweitzer-Straße und einem Parkring auf dem Versorgungszentrum (VZ). Die gesamte Struktur wird über eine zentrale Zu- und Abfahrt an der Albert-Schweitzer-Strasse erschlossen. Vor hier an wird über die Spindel am westlichen Baufeldrand hoch- und über die Spindel am östlichen Baufeldrand runtergefahren. Ab der dritten Etage des Parkriegels spannen geneigte PKW-Brücken vom Riegel zum Parkring auf das VZ.

Der Lageplan eines Krankenhauses zeigt Gebäude, Straßen, Parkplätze, Gärten und Eingänge, mit Beschriftungen der Bereiche und Zufahrten. SBDA, Wettbewerb, Parkhaus, Uniklinikum, UKM, Münster, Städtebau, Aufstockung, Parkierungskonzept, PKW Stellplatz

Städtebau: Die Suche nach einem städtebaulich verträglichen Bild neben dem neuen OPZ, sowie einem verantwortungsvollen Umgang auf dem Versorgungszentrum, mit auch in Zukunft sich verändernden Anforderungen an die aufstehende Gebäudetechnik, führen zu der im Folgenden beschriebenen und gezeigten Lösung. Durch die am äußeren Rand des Riegels integrierten Spindeln und die dazwischen ungestörte Baufeldabwicklung, wird schon jetzt die Grundlage gelegt, die dem Leitbild der ingenhovenschen Masterplanung entspricht. Die darin gesetzten Definitionen an Volumen und Fassadenentwicklungen werden aktiv fortgeschrieben. Die Ausnutzung der kompletten Baufeldbreite entlang der Albert-Schweitzer-Straße wird durch die mitgedachte Überbauung des Sonderabfallagers (siehe Tragwerk), welches so im Bestand verbleiben kann, gelöst. Ansonsten erforderliche BImSch-Verfahren zur Neulokalisierung werden nicht mehr nötig. Durch die Integration der Abfall- und Abrollbehälter Standorte gegenüber der Ladezone, werden diese sinnvoll neu verortet. Das bisherige Erscheinungsbild entlang der Strasse wird aufgeräumt.

Technischer Grundriss mit grünen Pfeilen, schwarzen Linien, und rot gestricheltem Bereich, zeigt Schnittstellen und Luftzirkulation in einem Gebäude. SBDA, Wettbewerb, Parkhaus, Uniklinikum, UKM, Münster, Städtebau, Aufstockung, Parkierungskonzept.

VERSORGUNGSZENTRUM PARKHÄUSER WERTSTOFFHOF + WEGENETZ  = SERVICEBEREICH

ZENTRALISIERTES WEGEMANAGEMENT FÜR EINE SICHERE SORTIERUNG DER BESUCHER- UND PATIENTENWEGE VON DEN BETRIEBSBEREICHEN, KOMBINATION VON PARKEN UND VZ ALS ZENTRALER SERVICEBAUSTEIN AUF DEM UKM-CAMPUS

Diagramm eines elektronischen Bauteils, wahrscheinlich eine Schnittzeichnung eines Moduls mit verfügbaren Anschlussstellen, beschriftet mit 'VERFÜGBAR'. SBDA, Wettbewerb, Parkhaus, Uniklinikum, UKM, Münster, Städtebau, Aufstockung, Parkierungskonzept
Explosionszeichnung einer mehrstöckigen Parkgarage mit verschiedenen Ebenen, Rampen, Parkplätzen, technischen Einrichtungen und Zugängen. SBDA, Wettbewerb, Parkhaus, Uniklinikum, UKM, Münster, Städtebau, Aufstockung, Parkierungskonzept, PKW.
Grundrissplan eines großen Gebäudes mit Parkplätzen, Innenhöfen, verschiedenen Räumen und technischen Einrichtungen, vermutlich eines Einkaufszentrums oder Bürokomplexes. SBDA, Wettbewerb, Parkhaus, Uniklinikum, UKM, Münster, Städtebau, Aufstockung,
Grundriss eines großen Gebäudes mit verschiedenen Räumen, Fluren, Grünflächen und Parkplätzen. SBDA, Wettbewerb, Parkhaus, Uniklinikum, UKM, Münster, Städtebau, Aufstockung, Parkierungskonzept, PKW Stellplatz, Rampe

VARIABLE TECHNIKFLÄCHEN

FREIHALTUNG DER INNEREN DACHFLÄCHEN, AUFRECHTERHALTUNG DER VORHANDENEN AUFSTELLFLÄCHEN UND AUFBAUTEN ZUR WAHRUNG DER ANPASSUNG AN ZUKÜNFTIGE ANFORDERUNGEN

Zeichnung eines kleinen Gartens mit einem vertikalen Anbau für Pflanzen, einer kleinen Grünfläche, Steinen und Gartengeräten. SBDA, Wettbewerb, Parkhaus, Uniklinikum, UKM, Münster, Städtebau, Aufstockung, Parkierungskonzept, PKW Stellplatz, Rampe
Grafische Entwürfe eines modernen Gebäudes mit mehreren Stockwerken, technischem Bereich, Parkplätzen, Cafeteria, Innenhof, Küche, Büro und mehreren Ebenen. SBDA, Wettbewerb, Parkhaus, Uniklinikum, UKM, Münster, Städtebau, Aufstockung, Parken.
Architektonische Zeichnung eines modernen Gebäudes mit mehreren Etagen, inklusive Aufstockung zweier Parketagen auf dem Dach. SBDA, Wettbewerb, Parkhaus, Uniklinikum, UKM, Münster, Städtebau, Aufstockung, Parkierungskonzept, PKW Stellplatz, Rampe
Linienzeichnung eines modernen, mehrteiligen Gebäudes mit einer verbindenden Dachaufstockun. Im Hintergrund sind zwei Hochhäuser zu sehen. SBDA, Wettbewerb, Parkhaus, Uniklinikum, UKM, Münster, Städtebau, Aufstockung, Parkierungskonzept, PKW

Verkehrliche Erschließung + Parkierungskonzept: Der Übergang aus dem fließenden Verkehr der Albert-Schweitzer-Strasse erfolgt im Bereich der in der Verkehrsuntersuchung lokalisierten Stelle. Einmal aus dem fließenden Verkehr abgebogen, erfolgt die Zufahrt ins Parkhaus unbeschrankt an der außenliegenden, geraden Rampe Richtung Westen. Die gerade Führung und der moderate Anstieg ermöglichen ein rückstaufreies Abfließen aus dem Verkehr. Diese erste Rampe überwindet die notwendige Höhe zur Überbauung des Sonderabfallagers. Die westliche Spindel dient der Zufahrt zu den Ebenen und Parkplätzen, die östliche der Ab- und Ausfahrt. Die Spindeln haben eine moderate Steigung von 8% bei einer Fahrspurbreite von 3,50m zzgl. Schrammboard und Brüstungen, eine komfortable Nutzung ist somit gegeben.

Im Parkriegel ist es vorgesehen die überwiegenden Parkplätze für das Personal verorten, Im Parkring finden alle Parkplätze für die Patienten und Besucher statt. Die Anzahl des Personalparkens variiert dann je Ausbauvariante. Sollten nur 3 Etagen zum Parken umgesetzt werden, würden die ausstehenden 70 Stp. im Parkring jeweils zwischen den Zu- und Abfahrtsbrücken erfolgen.

Ein Parkleitsystem geleitet sowohl das Personal, als auch die Patienten zielsicher zum freien Parkplatz. Das Verkehrssystem im Riegel funktioniert als Einbahnstraße von West nach Ost. Auf dem Ring als Umfahrt verkehrssicher gegen den Uhrzeigersinn. Sollte auf der dem Patienten angezeigten Etage doch kein freier Parkplatz gefunden werden, kann innerhalb des Rings mittels einer Auffahrtsrampe die nächste Etage angefahren werden. Die Abfahrt erfolgt in jeder Etage über eine separate Brücke Richtung der Abfahrtsspindel im Riegel. Sollten die Ebenen 07 – 09 des Riegels nicht umgesetzt werden kann auf dem Ring neben der internen Auffahrtsrampe auch eine Abfahrtsspur realisiert werden.

Sollte sich trotz aller Vorkehrungen ein Patient bei der Suche zum Stellplatz verfahren und auf die Abfahrtsspirale gelangen, kann dieser am untersten Rampenfuß die Durchfahrt, zur erneuten Auffahrt, nehmen. Irrtümern auch bei unsicheren Fahrern wäre somit vorgebeugt.

Fahrradfahrer finden an der Albert-Schweitzer-Strasse konfliktfrei den Zugang zum Fahrradparkhaus und von dort aus den Weg in das Treppenhaus mit der direkten Anbindung an die Magistralen.

Detailansicht und -schnitt eines Parkhauses. Es zeigt verschiedene technische Details mit einigen Menschen, Bäumen und einem Fahrzeug. SBDA, Wettbewerb, Parkhaus, Uniklinikum, UKM, Münster, Städtebau, Aufstockung, Parkierungskonzept, PKW Stellplatz.
Detailansicht und -schnitt einer Dachaufstockung mit Parkflächen. Es zeigt verschiedene konstrucktive Details. SBDA, Wettbewerb, Parkhaus, Uniklinikum, UKM, Münster, Städtebau, Aufstockung, Parkierungskonzept, PKW Stellplatz.