ausgezeichnet im Rahmen des Ideenwettbewerbs „Sozial - Schnell - Gut“ für seriellen, bezahlbaren Wohnungsbau. Ausgelobt durch das Bauforum Rheinland-Pfalz.

STUDIE

PREFAB PRO,

BAUSYSTEM

FÜR

KOSTENGÜNSTIGEN

WOHMUNGSBAU

Ein architektonisches Diagramm eines mehrstöckigen Gebäudes mit rot markierten Dachflächen und mehreren weißen Ebenen, dargestellt in isometrischer Perspektive. SBDA, Wettbewerb, Sozial - Schnell - Gut, Tragstruktur, serielles Bauen, Architektur.

Insbesondere in den üblicherweise sehr zeitintensiven Gewerken der Gebäudetechnik und des Innenausbaus schafft PREFAB pro durch oberflächenfertige Bauteile mit integrierter haustechnischer Unterverteilung eine deutliche Weiterentwicklung gegenüber anderen herkömmlichen und vorgefertigten Bauweisen. Bauzeit und Erstellungskosten können somit deutlich optimiert werden.

Technisches Diagramm eines Gebäudes, Hervorhebung der elektrischen Installation mit roten Komponenten, Leitungen und Modulen. SBDA, Wettbewerb, Sozial - Schnell - Gut, Tragstruktur, serielles Bauen, Architektur, Modular, Skelettbauweise, Architektur.
Architektonische Skizze eines Gebäudes mit hervorgehobener Dachkonstruktion und Fenstern, die im roten Bereich markiert sind. SBDA, Wettbewerb, Sozial - Schnell - Gut, Tragstruktur, serielles Bauen, Architektur, Modular, Skelettbauweise, Architektur.
Visualisierung eines Innenraums mit moderner Küche mit Holz- und Betonelementen, offener Grundriss, große Fenster mit Blick auf einen Balkon und einen Baum, zwei Menschen stehen im Raum, einer am Fenster, der andere an der Kücheninsel. SBDA, Modular.
Skizze eines Innenraumplans, Fokus auf einen Raum umgeben von Wänden und Möbeln. SBDA, Wettbewerb, Sozial - Schnell - Gut, Tragstruktur, serielles Bauen, Architektur, Modular, Skelettbauweise, Architektur.

PREFAB pro ist als offenes System entwickelt, das das Hauptvorurteil gegenüber dem vorgefertigten, seriellen Bauen widerlegt. Im Sinne einer nachhaltigen Wohnraumproduktion kombiniert es eine breite Gestaltungsvielfalt mit den Vorteilen des vorgefertigten Bauens. Es kann kontextbezogen ausformuliert werden und verschiedene Typologien, Abmessungen, Geschossigkeiten und Fassadengestaltungen aufnehmen. PREFAB pro basiert auf einer bauteilbezogenen Betrachtungsweise (Tragwerk, Innenausbau, TGA, Gebäudehülle). Als Hybridsystem aus verschiedenen Bauweisen geht es gezielt auf die jeweiligen bautechnischen und nutzungsspezifischen Anforderungen ein

Grafisches Logo:  Preis- oder Auszeichnungsetikett mit den Worten 'Preisträger SSG', 'Ideenwettbewerb', 'Sozial-Schnell-Gut' in schwarz-weiß. SBDA, Wettbewerb, Sozial - Schnell - Gut, Tragstruktur, serielles Bauen, Architektur, Modular, Skelettbau.
Detaillierte technische Zeichnung eines Gebäudes mit roten Wänden, inklusive Baugerüst und Markierungen für Bauarbeiten. SBDA, Wettbewerb, Sozial - Schnell - Gut, Tragstruktur, serielles Bauen, Architektur, Modular, Skelettbauweise, Architektur.
Architektur Visualisierung: Balkon mit Esstisch und Pflanzen, Blick auf einen grünen Gemeinschaftshof mit Kindern, Bänken, Sonnenschirm und mehrstöckigen Wohngebäuden im Hintergrund. SBDA, Wettbewerb, Sozial - Schnell - Gut, Tragstruktur, Modular.
Schwarz-weiß-3D-Modell eines mehrstöckigen Wohngebäudes mit Balkonen, seitlicher Treppe und Flachdach. davor verschiedene Fassadenkonzepte. SBDA, Wettbewerb, Sozial - Schnell - Gut, Tragstruktur, serielles Bauen, Architektur, Modular, Skelettbauweise
Zeitstrahl mit verschiedenen textlichen Beschreibungen und Anforderungen für Tragwerke, Innenausbau, Gebäudehülle und Meilensteinen in einer Tabelle. SBDA, Wettbewerb, Sozial - Schnell - Gut, Tragstruktur, serielles Bauen, Architektur, Modular.
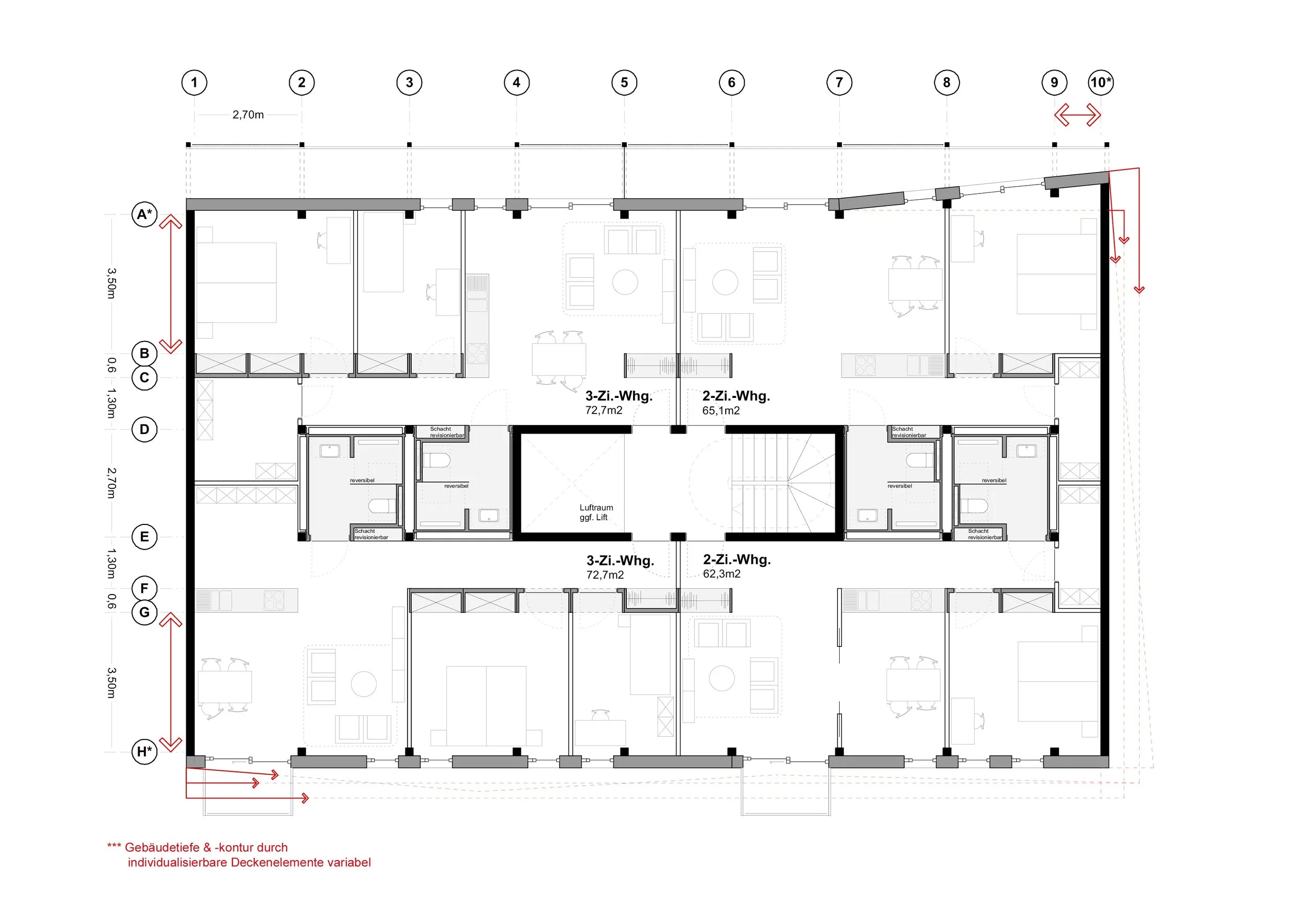
Grundriss einer mehrstöckigen Wohnanlage mit sechs Wohnungen, gemeinsamer zentraler Bereich, Treppenhaus, Aufzüge, Schlafzimmer, Wohnzimmer, Küche und Badezimmer, Maßangaben und Raumgrößen in Quadratmetern. SBDA, Wettbewerb, Modular.

Das Tragwerk aus Betonfertigteilen mit Beton-Holz-Hybriddecken ist als Skelettbau flexibel konzipiert und ermöglicht einen breiten förderfähigen Wohnungsmix. Die Verwendung moderner Steckverbindungen und die Einführung einer ‚Plug n’ Play’-Zone ermöglicht eine ganzheitliche baukonstruktive Integration aller haustechnischen Systeme. Sie können entsprechend ihrer kürzeren Lebenszyklen im Laufe der Zeit auf- um- oder nachgerüstet werden, ohne dass dabei andere Bauteile zerstört werden  müssen. Der zu 100% „trockene“ Endausbau eliminiert zeitintensive und planungsunsichere Trocknungsprozesse.

Grundrisse verschiedener Wohnungsgrundrisse mit den Bezeichnungen: Solitär, Freiform und weitere, mit Maßen und Grundrissaufteilungen. SBDA, Wettbewerb, Sozial - Schnell - Gut, Tragstruktur, serielles Bauen, Architektur, Modular, Skelettbauweise.
Diagramm einer Heizungs- und Kühlsysteminstallation in einem Gebäude mit Rohrleitungen, Heizkörpern, Kessel und Steuerungskomponenten. SBDA, Wettbewerb, Sozial - Schnell - Gut, Tragstruktur, serielles Bauen, Architektur, Modular, Skelettbauweise.
Ein technisches Explosionsdiagramm eines mehrstöckigen Gebäudes mit Blick auf die verschiedenen Etagen und roten Container auf dem Dach. SBDA, Wettbewerb, Sozial - Schnell - Gut, Tragstruktur, serielles Bauen, Architektur, Modular, Skelettbauweise.
Vergleich der traditionellen Bauweise und der vorgefertigten Bauweise. Die traditionelle Bauweise dauert insgesamt ca. 22 Monate, mit Planung, Rohbau und Ausbau. Die vorgefertigte Bauweise dauert etwa 18,5 Monate, mit Planung, Vorgefertigung, Bauphase und Endausbau. Die roten Kreise heben die Zeitersparnis und Vorteile der vorgefertigten Bauweise hervor.