Zeichnung eines Gebäudes mit dem Schriftzug "Zeche Nachtigall" und umliegenden Grünanlage mit Treppen und Bänken. SBDA, Wettbewerb, Kindermusum, Holzbau, LWL, Zeche Nachtigal, Holzkonstruktion, Kupferfassade, Entwurf.

WETTBEWERB

BESUCHERZENTRUM

ZECHE NACHTIGALL,

WITTEN

Zentrale Entwurfsabsicht ist die Schaffung einer würdigen, einladenden und gleichzeitig spannenden Geste. Dafür wird ein in allen Belangen zeitgemäßer und zukunftsfähiger Solitär so gesetzt, dass er einen Ort des Ankommens definiert. Zusammen mit der Ausformulierung von Museumsabgrenzung und Fassade wird eine fließende Raumsequenz geschaffen die die BesucherInnen selbstverständlich in das Museum überführt.

Grundriss eines Gebäudes mit angrenzendem Außenbereich, inklusive Spielplatz, Naturraum, Garten und Parkplätze, sowie Eingangsbereich mit Beschilderung. SBDA, Wettbewerb, Kindermusum, Holzbau, LWL, Zeche Nachtigal, Holzkonstruktion, Kupferfassade.

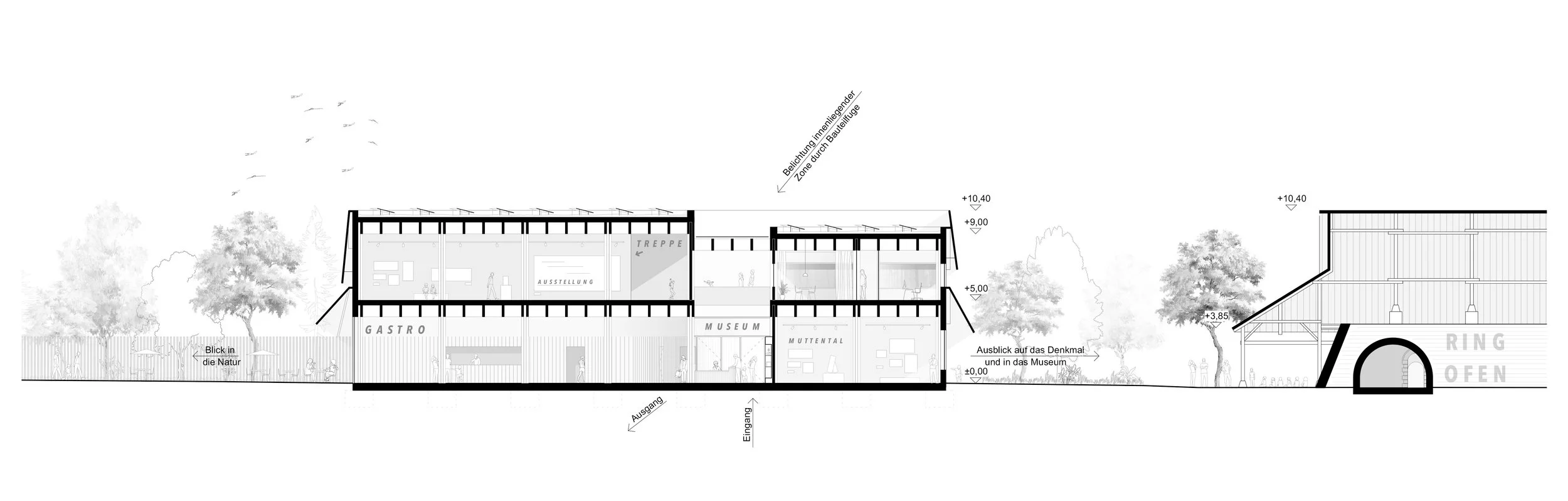
Das Erdgeschoss gliedert sich funktional in drei Bereiche. Zwischen den Leitlinien fliest der öffentliche Raum mit dem Gastronomiebereich und dem Museum-Shop ins Innere des Gebäudes. Die beiden Flanken der Bänder nehmen den Ausstellungsbereich Muttental und einen klar gegliederter Funktionsbereich für Mitarbeitende und Küche auf. An der Engstelle schafft die Kasseninsel einen einfach kontrollierbaren und zugleich niederschwelligen Übergang in den kostenpflichtigen Bereich, aus dem der Weg in das Obergeschoss oder auf das Museumsgelände möglich wird.

Im Obergeschoss wird die konstruktive Trennung des Gebäudeinneren deutlich. Geteilt durch einen Luftraum liegt auf einer Seite der Multifunktionsraum mit anschließenden Lagerflächen. Auf der anderen Gebäudeseite, erreichbar über eine Brücke der Verwaltungsbereich mit Büros, Personal- und Besprechungsraum.

Grundriss eines Gebäudes mit verschiedenen abgetrennten Räumen und Bereichen, darunter Technikraum, Personalraum, Lager, Multifunktionsraum, Zeche, Nachthall und Verwaltung. Sonnenschirme im Außenbereich. SBDA, Wettbewerb, Kindermusum, Holzbau, LWL,

Die erforderliche Museumsabgrenzung wird in zwei Leitlinien übersetzt. Sowohl aus Richtung der Nachtigallbrücke, als auch des zukünftigen Bahnsteigs führen sie die BesucherInnen als Bänder aus schwebenden Holzstehlen selbstverständlich in das Gebäude, zur Kasse und dann ins Museum. Die BesucherInnen durchlaufen dabei eine spannende Raumsequenz mit unterschiedlichen Situationen. Die Bänder werden auf diesem Weg ihrer jeweiligen Anforderungen entsprechend differenziert. Sie sind Leit- und Spannungselement, Einbruchschutz und funktional- sowie thematisch aufgeladen. Sie erlauben erste Durchblicke in den Naturraum sowie auf das Museumsgelände. In den Innenraum weitergeführt entwickeln sie sich zu Ein- und Durchgängen sowie funktionalen Elementen wie Theke, Regale und Schließfächer.

Lageplan des Vorplatzes mit einem großen, hellen Kreis, der den Aufenthaltsort markiert, und zwei Leitlinien, die den Weg von und zur Sitzecke führen. Auf dem Vorplatz sind Begriffe wie Aufenthaltqualität, Ankunftspunkt, Gruppentreffpunkt markiert, sowie Hinweise auf die Leitlinien, die durchblickend, thematisch aufladbar und aus Naturmaterial sind.

Das neue Besucherzentrum wird respektvoll neben der geschützten Ringofenanlage platziert. Durch seine Ausformulierung kann es neben ihr bestehen und eine adäquate Adresse bilden ohne sie zu überstrahlen. Es wird als zeitgemäße Ergänzung verstanden, die das Bestehende aufgreift und weiterdenkt. Es steht zum Bestand parallel aber zurückgesetzt. So wird die Ecksituation des Denkmals freigestellt und schon beim Ankommen erlebbar. Diese Wirkung wird durch die Einbindung der Topografie noch verstärkt.

Architektonische Zeichnung eines zweistöckigen Gebäudes mit verschiedenen Bereichen wie Gastronomie, Museum, Ausstellung und einer Ringleuchte. Im Hintergrund Bäume und eine Holz-Umzäunung. SBDA, Wettbewerb, Kindermusum, Holzbau, LWL, Zeche Nachtigal
Gebäudeschnitt eines Hauses mit zwei Etagen, PV-Dach und umgebender Natur. Markierungen für Geothermie, Regenwasser, und Energiequellen. SBDA, Wettbewerb, Kindermusum, Holzbau, LWL, Zeche Nachtigal, Holzkonstruktion, Kupferfassade, Entwurf.

Um den einfachen, rechteckigen Baukörper schmiegt sich ein „Fassadenkleid“, dass wesentliche Merkmale des Kontextes aufgreift und zeitgemäß interpretiert. So entsteht ein in der Beschaffenheit, dem Material und der Formsprache würdiges und zeitgemäßes Wechselspiel mit dem Bestand.

In zwei horizontale Bänder unterteilt, öffnet sich die Fassade je nach Erfordernis. Auf diese Weise werden Ausblicke erlaubt, Vordächer geschaffen, Verschattungselemente und PV-Flächen generiert. Für die Außengastronomie und den Eingang bildet die Hülle ein Vordach, dass auch bei schlechter Witterung einen Aufenthalt erlaubt und zugleich im Sommer vor Überhitzung schützt. Es definiert die Eingangsgeste. Aus der kostenlosen Ausstellung inszeniert es den Einblick ins Museum. Eine Aufforderung einzutreten.

Diagramm eines Gebäudes mit Sonneneinstrahlung, Schatten und einer Person, dazu Textbeschreibungen zu Material, Farbe, Form, Struktur und Konstruktion, sowie die Begriffe Fassade, Dach, Solar, Ausblick, Wechselspiel, Ringofen. SBDA, Wettbewerb.
Architektonische Zeichnung eines Industriegebäudes mit Schornstein, grünen Bäumen und weiteren Neubau. SBDA, Wettbewerb, Kindermusum, Holzbau, LWL, Zeche Nachtigal, Holzkonstruktion, Kupferfassade, Entwurf.

Fassade und die frei fließenden Bänder stehen im spannungsvollem Kontrast zur stringent konstruktiv gedachten Grundform des Gebäudes. Darin manifestiert sich die konstruktive Prämisse das Tragwerk, die Gebäudehülle, den Ausbau und die Haustechnik voneinander unabhängig zu denken. Diese Herangehensweise ermöglicht ein lebenszyklusgerechtes, kreislauffähiges und wirtschaftliches Gebäude.

Lebenszyklusgerecht, da die Konstruktion konsquent auf die Trennbarkeit der 4 Bauteilkategorien ausgerichtet ist. Auf diese Weise können die unterschiedlich langen Lebenszyklen berücksichtigt werden. Komponenten sind zerstörungsfrei auszutauschen, instandzusetzen oder zu warten. Dies ist im laufenden Betrieb möglich.

Kreislaufgereicht, da durch die getrennte Betrachtung der Bauteile auf struktureller Ebene bereits eine kreislaufgerechte Bauweise s in das Gebäude eingeschrieben ist. Reversible Fügungen bis ins Detail wahren auch auf der baukonstruktiven Ebene Kreislaufgerechtigkeit. Für die Bauteilfügungen gilt: Mechanisch vor verklebt sowie punktuell vor linienförmig vor flächig gefügt. Die Bauteile werden nach Möglichkeit so ausformuliert, dass eine kaskadierte Nachnutzung auf werkstofflicher oder stofflicher Basis möglich ist. Auf materieller Ebene werden nach Möglichkeit nachwachsende Rohstoffe verwendet. Bei der Auswahl der Baustoffe wird auch das Kriterium der Recyclingfähigkeit angesetzt. Falls vorhanden, werden Baustoffe aus recyceltem Material vorgezogen.

Wirtschaftlich, da die bauteilbezogene Denkweise eine Ausformulierung der jeweiligen Bauteile auf ihre spezifischen Anforderungen zulässt. Neben den Errichtungskosten werden so auch die Lebenszykluskosten nachweislich gesenkt. So ist das Gebäude vorbereitet für eine kommende Circular Economy.

Skizze eines Gebäudes namens 'Zeche Machtigall' mit einem Garten davor, umgeben von Bäumen, einem Weg, einer kleinen Brücke und einem Klettergerüst aus Holzstämmen.
Architektonische Detailansicht eines modernen Museumseingangsgebäudes mit Holz, Kupferfassade und Glas, mit dem Schriftzug "AUSSTELLUNG MUTTENTALL" im inneren, umgeben von Bäumen und Grünanlagen. SBDA, Wettbewerb, Kindermusum, Holzbau, LWL, Zeche
Architektonischer Detaiulschnitt einer zweistöckigen Holzstruktur mit Bereichen für  Gastronomie und Ruhezonen, umgeben von Bäumen und einer Gartenmauer, mit Menschen im Außen- und Innenbereich. SBDA, Wettbewerb, Kindermusum, Holzbau, LWL, Zeche.

Das Tragwerk ist ein Punktgestütztes System in Form einer Holz-Skelett-Bauweise aus vorgefertigten Kreuzstützen und Rasterdeckenelementen. Gefügt per Hartholzzapfen und Formteilen. Die Aussteifung erfolgt über den Treppenhauskern und ggf. ergänzende Diagonalstreben.

Die Gebäudehülle besteht aus nichttragenden, raumabschließenden Holztafelbauelementen. Gefügt per Auflagerkonsolen und Schraubverbindungen. Sie kann auf jeden energetischen Standard ausgelegt werden. Ergänzt wird sie durch ein Gründach, dass vor Überhitzung schützt und als Teil eines geschlossenen Wasserkreislaufes gedacht ist.

Der Ausbau ist unabhängig vom Tragwerk, sodass eine hohe Nutzungsflexibilität gegeben ist. Es sollen möglichst oberflächenfertige Bauteile verwendet werden. Auf Nassgewerke soll weitestgehend verzichtet werden.

Die Gebäudetechnik wird offen verlegt und Aufputz installiert. So ist sie reversibel und jederzeit zugänglich.